Станбен објект Кавадарци – Ново модерно живеалиште со врвни услови
Станбен објект Кавадарци претставува најновиот проект на Тотал Инженеринг, создаден да понуди модерен, функционален и удобен простор за живеење и работа. Лоциран на атрактивна позиција во Општина Кавадарци, овој објект комбинира врвен архитектонски дизајн, практичност и квалитет кој ги задоволува потребите на современите жители.
Модерен станбен објект Кавадарци со одлична локација
Проектот се развива на позиција што обезбедува идеални услови за секојдневен живот. Близината до централните градски зони овозможува брз пристап до образовни институции, деловни објекти, маркети и важни градски линии. Ова го прави станбениот објект Кавадарци совршен избор за семејства и професионалци.

Одлична можност за инвестиција
Овој станбен објект во Кавадарци претставува атрактивна инвестиција за сите што бараат квалитетен дом или деловен простор во растечка урбана средина. Внимателно планираната инфраструктура и современиот стил даваат долгорочна вредност и стабилност.
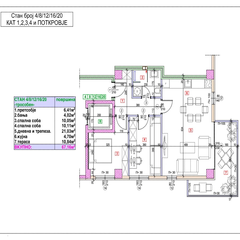
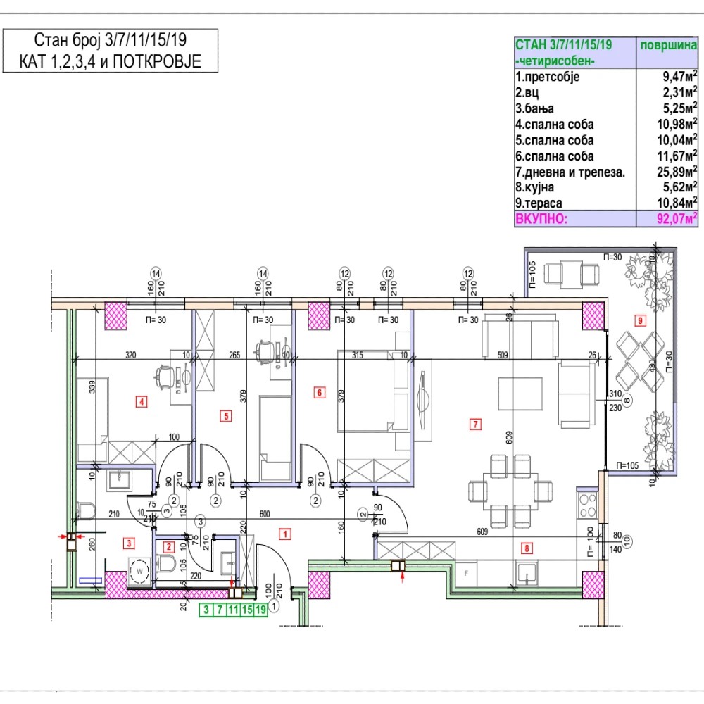
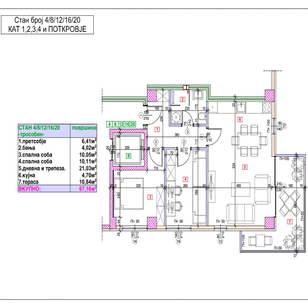
Распоред и големина на становите
Објектот располага со 20 функционално дизајнирани станови, распределени на 4 спрата. Секој стан е создаден со практичен распоред, оптимална искористеност на просторот и максимална удобност.
Достапни типови станови:
-
- 67 m² – Трособен стан (2 спални)
- 69 m² – Трособен стан (2 спални)
- 72 m² – Трособен стан (2 спални)
- 92 m² – Четирисобен стан (3 спални)
Овој спектар на квадратури нуди решение за различни стилови на живеење – од поинтимни, компактни станови до поголеми семејни единици.
Современ дизајн и комфор
Станбениот објект Кавадарци се одликува со модерен екстериер, големи стаклени површини, пространи тераси и зелени елементи кои создаваат пријатна атмосфера. Архитектурата е фокусирана на квалитет, естетика и функционалност во секој детал.
Простор создаден за удобен живот
Овој објект претставува идеален избор за сите кои бараат современо живеење во Кавадарци, во комбинација со стабилна инвестиција и исклучителна локација. Тотал Инженеринг ја продолжува традицијата на квалитетна градба и овој станбен објект Кавадарци тоа јасно го докажува, каде нашата компанија се фокусираше на делот со енергетската ефикасност, дизајнот, квалитетот и удобноста на нашите клиенти.







